Sacramento 27

“Built by a wine importer in 1887, on a quiet inner-boulevard that overlooks 200+ acre Humboldt Park. It's clear why the owners chose this site 150 years ago, and it still retains the same protected beauty today.”

  • Humboldt Park (Chicago), Illinois
    6,150 sf / Renovation + Renovation
    Completed 2021

  • Truly durable elegance never fades - sometimes it’s just hidden under 5-ft of discarded boxes, decades of newspapers, and a few sewing machines. Such was the case at Sacramento 27 - an oversized vintage graystone on an even-more-oversized lot, situated across from the vast open space of Humboldt Park. This gem needed some polishing, sure, but even more it just needed some exposure to the abundant daylight it already possessed.

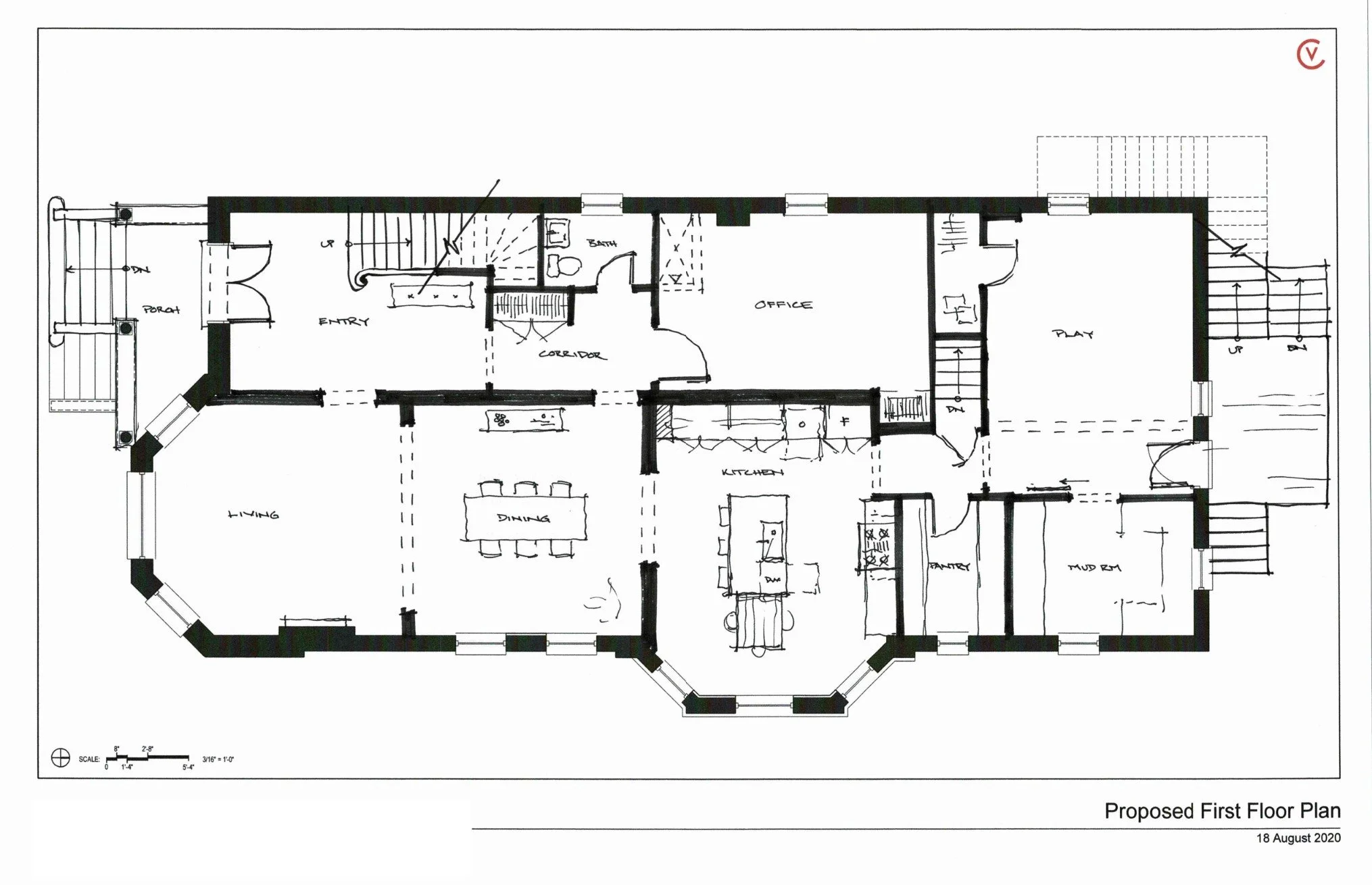
    The homeowners didn’t want this to be a knee-jerk “gut rehab” - they wanted to be thoughtful and selective it what needed to be replaced, and what didn’t. Existing plasterwork was maintained wherever possible - surgically cutting in new electrical conduit, and preserving a unique, curved crown moulding. Same for the original wood door and window trim, which had developed an enviable patina after years of service. Existing wood floors were simply sanded and refinished, celebrating the natural variation in grain and tone. An arched glass entry door, found new life at the home office, and a carved wood handrail was salvaged from another vintage two-flat prior to demolition for reinstallation at the interior stair.

    Everyday moments are elevated and celebrated, thanks to the flexibility of the large floor plates. Triple-wide windows turn the primary bathroom into an event of its own, while a south-facing bay window allows the relocated kitchen to enjoy both morning and evening light.

  • Design Architect: Via Chicago
    Architect of Record: 360 Design Studio

 
 

Original Conditions (August 2020)

Work-In-Progress (October 2020)

Limited Interior Demolition (October 2024)

 
 

Original Conditions (August 2020)

 
 

Work-In-Progress (October 2020)

Work-In-Progress (September 2020)

Preliminary Concept Sketch