Apartamento Canalero

“Less house, more home.”

  • Casco Viejo, Ciudad de Panamá, Panamá
    56 m² / Interior Design
    Completed 2022

  • Known colloquially as “La Terraza”, this mixed-use building has stood sentinel over one of the highest points in Casco for nearly three centuries. In 2014 a tragic fire burned thru the entire interior, but left the primary walls - measuring 1-meter-thick in most areas - largely intact. Via Chicago led a years-long effort to salvage the existing structure, document critical details, develop a redevelopment plan, navigate Patrimonio approvals, and bring this classic piece of Panamá back to life. Skilled craftsmen utilized damaged fragments as a guide for recreating lost elements - such as the ornate steel railings which line the second floor balconies. This reborn structure integrates existing calicanto walls - dating from the early 1800s - with exciting new interiors, and is topped by a breathtaking, panoramic terrace.

  • Architect: Via Chicago
    Interiors: Via Chicago
    Structural Engineer: Diaz y Asociados, S.A.
    MEP Engineer: ITESA
    General Contractor: Diaz y Asociados, S.A.
    Landscape Architect: Hiedra y Bambú

 

Work-In-Progress (December 2018)

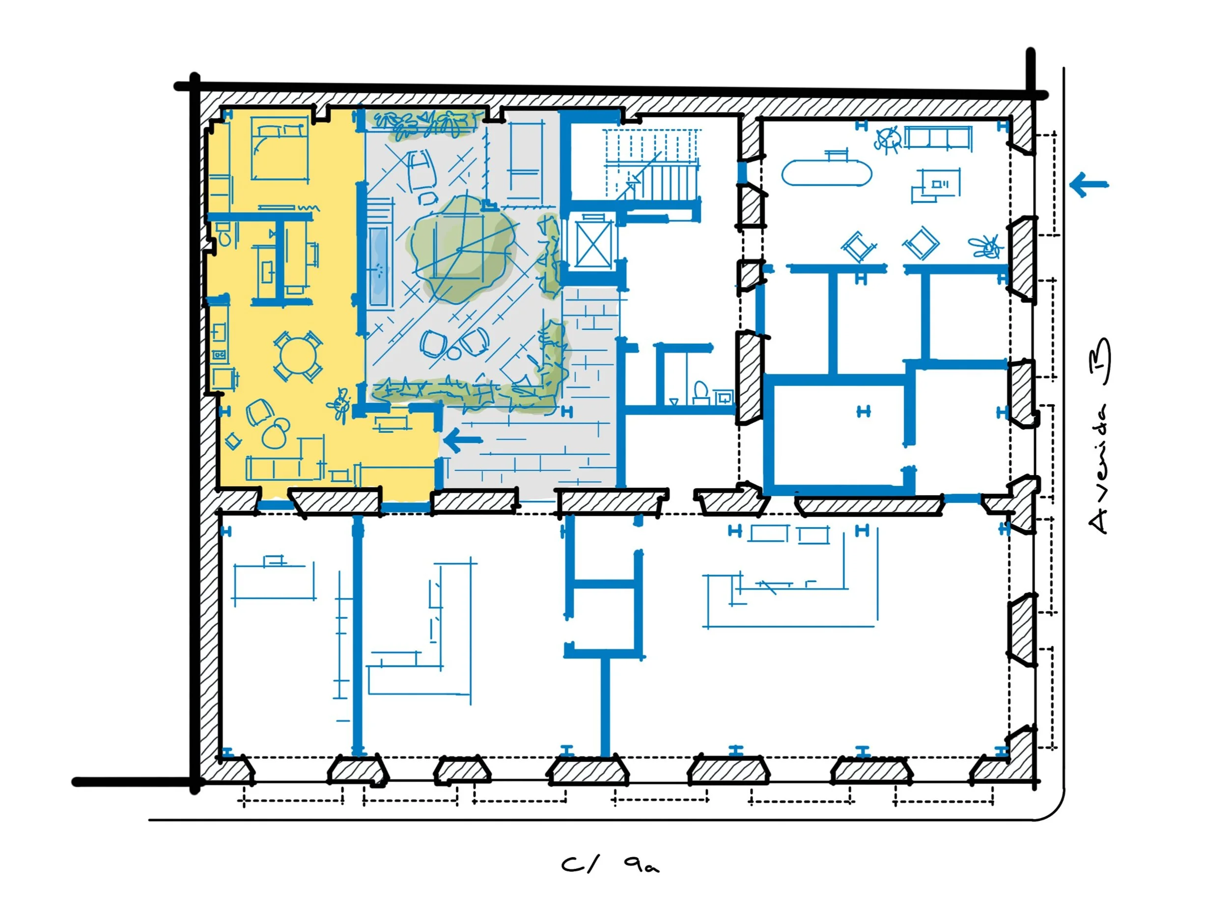
N00 Floor Plan

Original Conditions (February 2017)