Parchment Studio
“It’s the kind of story that we really want to replicate up and down our commercial corridors, a real respect for what these buildings are.”
Daniel La Spata
Alderman, First Ward
- 
      
        
          
        
      
      Logan Square, Chicago, Illinois 
 6,300 sf / Renovation
 Completed 2021
- 
      
        
      
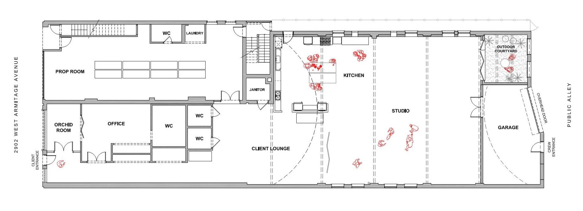
      Behind an assuming storefront on this busy stretch of Armitage hides a soaring bowtruss warehouse - the longtime home of AAA Metals, a local tool manufacturer. After years of pressure from developers ready to raze the 120-year-old structure, the property was instead purchased by a local photographer looking to maintain its commercial presence and inject a fresh energy into the block. Via Chicago worked together with stylist Johanna Lowe to convert the building into a new food-focused photography studio. The updated space is alive with interior gardens, a hidden courtyard, a large prep kitchen, and a 3,000 sq ft flexible studio space for video and photography crews. Rather than concealing the building’s history, the entire team worked to highlight the hard-earned patina that results from 100 years of industrial use. 
- 
      
        
      
      Architect: Via Chicago 
 Interiors & Styling: Johanna Lowe
 General Contractor: Formed Space
 Structural Engineer: Rockey Structures
 MEP Engineer: ACGi, Intl.
 Owner’s Rep: Zora Popovic
- 
      
        
      
      Featured in BlockClub Chicago, October 2021 
 Highlighted by Preservation Chicago, October 2021
 
          
        
       
             
             
             
            